CELEBRATING 35 YEARS!
CURRENT DEVELOPMENTS
Menu
  • About Us
    • Overview
    • Careers
    • Accreditations
    • Land Opportunities
  • Current Developments
    • View All
    • Queenswater Apartments
    • Yoker Wharf
    • The Meadows
  • Customer Care
    • Overview
    • Customer Charter
    • Health & Safety
    • Why Buy New
  • News
  • Rented Homes
  • Contact Us
  • Overview
  • Careers
  • Accreditations
  • Land Opportunities
  • View All
  • Queenswater Apartments
  • Yoker Wharf
  • The Meadows
  • Overview
  • Customer Charter
  • Health & Safety
  • Why Buy New
Queenswater Apartments
Queenswater Apartments
The Meadows
The Meadows
Yoker Wharf
Yoker Wharf
  • About Us
    • Overview
    • Careers
    • Accreditations
    • Land Opportunities
  • Current Developments
    • View All
    • Queenswater Apartments
    • Yoker Wharf
    • The Meadows
  • Customer Care
    • Overview
    • Customer Charter
    • Health & Safety
    • Why Buy New
  • News
  • Rented Homes
  • Contact Us
Follow us
Instagram

Clyde, First Floor, £207,995

Plot 117
  • Overview
  • Floor Plan
  • Gallery
  • Specification
  • Directions
  • Download brochure

Choose a home of distinction at Yoker Wharf

Our contemporary 2 bedroom apartments are situated in a prime waterfront location along the River Clyde, with some of the apartments boasting direct views of the river.

All apartments feature beautiful open-plan kitchen lounge areas which boost patio doors to a Parisian-style balcony railing.

Complete with luxurious touches throughout, including en suite, utility storage and cupboard, fitted wardrobes to both bedrooms, and an elegantly finished bathroom, these apartments create a living experience of quality and design.

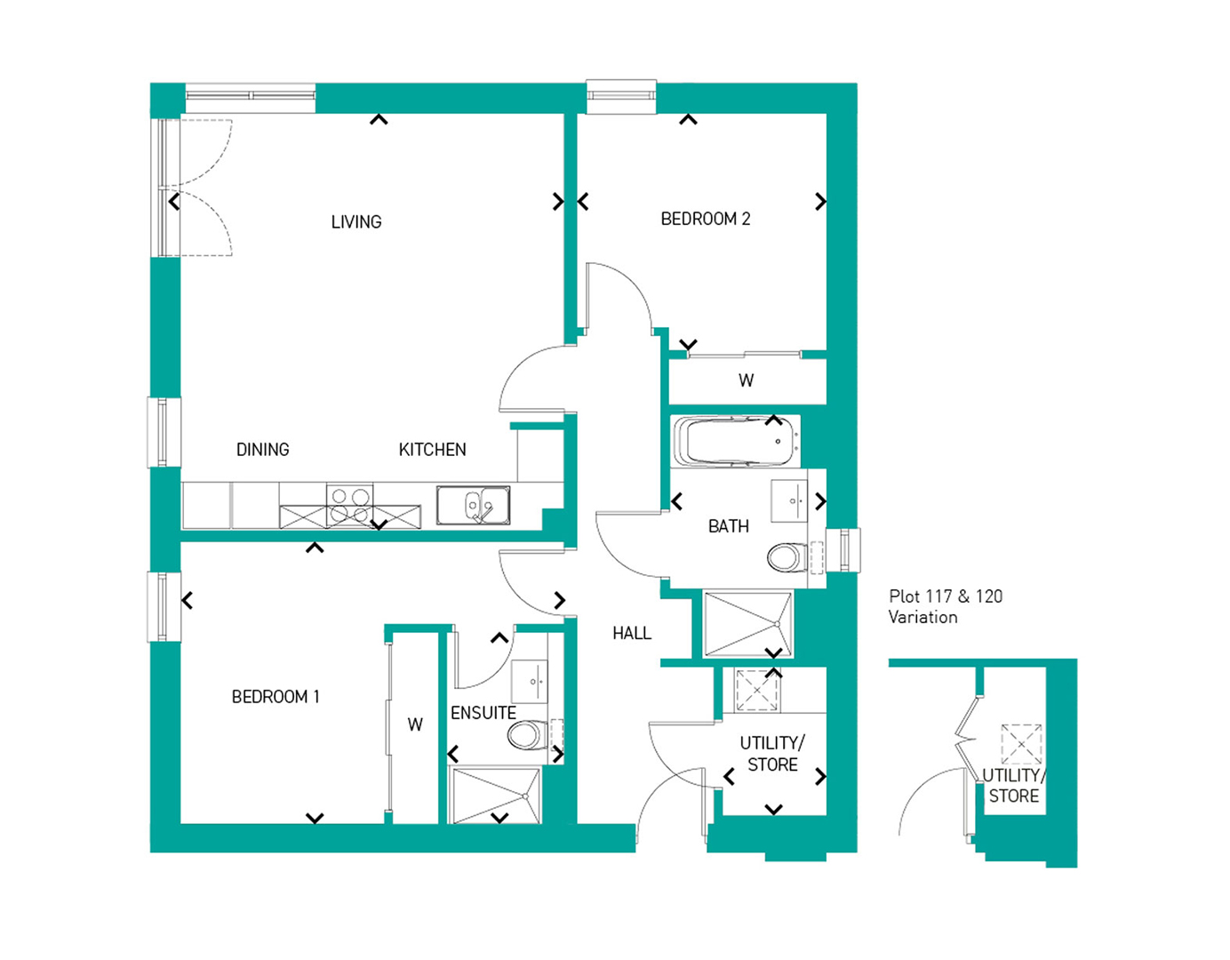
Floor Plan & Dimensions

Square Feet & Meters
Dining/Living 17’7” x 16’2” | 5370 x 4945
Bedroom 1 11’11” x 16’2” | 3645 x 4945
En suite 8’3” x 4’11” | 2515 x 1520
Bedroom 2 9’11” x 10’6” | 3045 x 3215
Bathroom 10’4” x 6’7” | 3150 x 2010
Store 6’3” x 4’4” | 1920 x 1335
Total Area 821 sq ft | 76.28 sq m

Gallery

Specification

Kitchens
Wardrobes
Security and Safety
Decoration
Shower Room and En-Suites
Plumbing and Heating
Electrical
Externals
  • German manufactured handleless kitchen with choices of units, laminate worktops and upstands (exc. hob area).
  • Built in single oven.
  • 60mm induction hob.
  • Concealed telescopic chimney hood.
  • Stainless steel 1½ bowl sink with chrome mixer tap.
  • Under unit Sensio lighting.
  • Fridge freezer 70/30.
  • Dishwasher.
  • USB charging point.

Sliding mirrored wardrobes with timber shelf and chrome hanging rail to both bedrooms.

Mains wired smoke and carbon monoxide detectors.

  • Internal doors finished in white gloss with contemporary satin aluminium handles.
  • Internal walls and ceiling with white emulsion.
  • White gloss painted woodwork.
  • Grey UPVC windows with internal white finishes.
  • White composite front door.
  • French door and Juliette balconies to living
    room areas.
  • Designer white sanitaryware.
  • Contemporary chrome taps and shower.
  • White shower trays.
  • Towel radiators to bathroom and en-suite.
  • Choice of Porcelanosa tiling from designer
    ranges (see layout for tiling areas).
  • Gas central heating via a combi boiler system
    with radiators.
  • Programmable thermostat.
  • Brushed chrome switches to kitchen areas.
  • White sockets and switches throughout to all other areas.
  • Downlighters to bathroom and en-suite,
    pendants to all other areas.
  • Television points to living room and bedroom 1.
  • Audio intercom system.
  • Allocated parking space.
  • PV panels to the roof.
  • Carpeting to the communal areas and stairs.
  • Audio intercom entry system.
  • Bike shelter.

Directions

Enter the post code for the location where your journey will begin.

Submit
Enquire now

Get in touch to find out more about reserving your new home at Yoker Wharf.
EXPLORE
  • About
  • Customer Care
  • Current Developments
  • News
  • Turnberry Rented Homes
  • Contact
CONTACT

Turnberry Homes Ltd
18 Allerdyce Drive
Great Western Business Park
Glasgow G15 6RY

Tel: 0141 944 6544
salesoffice@turnberryhomes.co.uk

FOLLOW US
Instagram
© Turnberry Homes 2026
  • Privacy Policy
  • Terms & Conditions
Site by Shine